ココハウス不動産 > 筑紫野市大字筑紫 戸建て
土地76坪◆内外装リフォーム6LDK+納戸【駐車3台可】
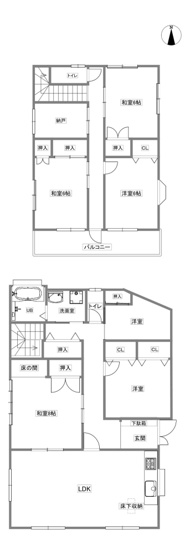
※写真や図と実際の現状とが異なる場合は現状を優先させていただきます。
画像をクリックして視点を操作











(※元利均等方式 金利5.00%まで ※返済年数5~50年まで入力できます)
(※ボーナスは年2回で計算しています。1000万円まで入力できます)
(※物件購入時、その他諸費用が発生する場合がございます)
| 所在地 | 福岡県筑紫野市大字筑紫 | ||
|---|---|---|---|
| 交通 | |||
| 間取り/詳細 | 6LDK/ | 建物面積(坪数) | 142.84㎡(43.2坪) |
| 価格 | 3,380万円 | ||
| 駐車場/月額料金 | 有(3台)(屋根有)/0円 | ||
| 土地の敷金/保証金 | -/- | 借地料/借地期間 | -/- |
| 土地権利 | 所有権 | 土地面積(坪数) | 253.47㎡(76.67坪) |
| 傾斜地部分面積 | - | 路地状敷地 | - |
| 私道負担面積/セットバック | -/- | 高圧線下面積 | - |
| 地目/地勢 | 宅地/- | 接道状況 | 一方(南 公道 6.0m 間口 14.0m) |
| 建ぺい率/容積率 | 50%/80% | 用途地域 | 第一種住居 |
| 都市計画 | 市街化区域 | 種別/構造 | 中古一戸建/木造 |
| 階建 | 2階建 | 築年月(築年数) | 1995年 7月 (築30年) |
| 総区画数/販売区画数 | -/- | 向き | 南 |
| 現況 | 空家 | その他の法令上の制限 | - |
| 取引態様/引渡時期 | 一般媒介/即時 | 建築確認番号 | - |
| 物件番号 | 100334548 | 取引条件の有効期限 | 2026年01月29日 |
| リフォーム |
2025年10月 キッチン 浴室 トイレ 壁 床 全室 給湯器交換ほか 2025年10月 外壁 屋根 玄関扉交換 |
||
| 設備条件 |
|
||
| 備考 |
中古戸建 筑紫野市 桜台駅 リフォーム済 駐車3台可 筑紫小学校 筑山中学校 ------------------ 「中古住宅の購入」をどこよりもスムーズに。をテーマに不動産相談会を毎週開催中です♪ ====================== 【物件探し】【資金計画】【購入手続き】【住宅診断】【リフォーム相談】【耐震工事】【登記手続き】【リフォームリノベーション工事】【アフターメンテナンス】【税金】など お客様が何社も不動産屋や銀行を回ったり、リフォーム業者をご自身で探す必要はございません。ココハウスがまとめて解決♪ 〇福岡の不動産ネットワークにより、豊富な物件の中からご紹介 ●購入住宅の簡易診断も実施、購入前の不安を解消いたします 〇自社設計施工のリフォーム提案!(中古住宅保険の加入も可能) ●リフォーム工事費用は低金利の住宅ローンとセットでお得に 〇お引渡後のアフターメンテナンスにも迅速に対応 ●豊富な知識で最適な住宅ローンをご紹介 こんなお悩みがあった方も住宅の購入をされています! △パート、アルバイト、勤続1年未満の方 ▲資金計画に不安がある、頭金が無い方 △住宅ローンが通らない、個人情報に問題がある ▲自営業者の方、女性のみで購入される方 △過去に金融事故(滞納など)がある方 ココハウスでは不動産やリフォームのみならず【住宅ローン】にも力を入れております! 暮らしのワンストップサービスでお客様に安心して中古住宅を購入頂ける体制を整えておりますので、暮らしに関する事なら何でもお気軽にお問合せ下さい。 ********************** |
||
| 取扱会社 |
|
||
| QRコード |
このQRコードを読み取ることで、スマホでも物件情報を確認できます。 |
||
※地図上に表示される物件の位置は付近住所に所在することを表すものであり、実際の物件所在地とは異なる場合がございます。
筑紫野市以外の市区町村から探す