ココハウス不動産 > グラン・ドムール周船寺
【オーナーチェンジ】ファミリータイプ 月額6.8万円で賃貸中(年収81.6万円)、想定利回り5.70%、周船寺駅まで徒歩14分、3LDK、ペット可(小型犬・猫)、駐車場空き有











(※元利均等方式 金利5.00%まで ※返済年数5~50年まで入力できます)
(※ボーナスは年2回で計算しています。1000万円まで入力できます)
(※物件購入時、その他諸費用が発生する場合がございます)




| 所在地 | 福岡県福岡市西区大字千里463-6 | ||
|---|---|---|---|
| 交通 | |||
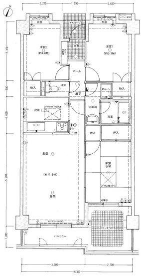
| 間取り/詳細 |
3LDK LDK 15.5帖/洋室 5.3帖/洋室 4.8帖/和室 6.0帖 |
専有面積 | 68.16㎡ |
| バルコニー面積 | 11.61㎡ | ルーフバルコニー面積/テラス面積/専用庭面積 | -/-/- |
| 価格 | 1,470万円 | ||
| 管理費 | 4,780円 | 駐車場/月額料金 | 空有/4,000円 |
| 利回り | 想定5.55%/- | ||
| 修繕積立金 | 15,680円 | 修繕積立基金 | - |
| 土地権利 | 所有権 | 国土法届出要否 | 不要 |
| 用途地域 | 第一種住居 | 地勢 | - |
| 種別/構造 | 中古マンション/鉄筋コンクリート | 向き | 南東 |
| 築年月(築年数) | 1990年 9月 (築35年) | ||
| 所在階/階建 | 5階/6階建 | 棟総戸数/販売戸数 | 45戸/- |
| 管理組合有無 | 有 | 管理形態 | 管理会社に全部委託 |
| 管理員の勤務形態 | 日勤 | 管理会社 | 総合システム管理株式会社 |
| 取引態様 | 一般媒介 | 現況 | 賃貸中 |
| 引渡し | 相談 | 建築確認番号 | - |
| 物件番号 | 98753413 | 取引条件の有効期限 | 2025年12月20日 |
| 設備条件 |
|
||
| 備考 |
中古マンション 福岡市西区 周船寺駅 周船寺小学校 元岡中学校 ------------------ 「中古住宅の購入」をどこよりもスムーズに。をテーマに不動産相談会を毎週開催中です♪ ====================== 【物件探し】【資金計画】【購入手続き】【住宅診断】【リフォーム相談】【耐震工事】【登記手続き】【リフォームリノベーション工事】【アフターメンテナンス】【税金】など お客様が何社も不動産屋や銀行を回ったり、リフォーム業者をご自身で探す必要はございません。ココハウスがまとめて解決♪ 〇福岡の不動産ネットワークにより、豊富な物件の中からご紹介 ●購入住宅の簡易診断も実施、購入前の不安を解消いたします 〇自社設計施工のリフォーム提案!(中古住宅保険の加入も可能) ●リフォーム工事費用は低金利の住宅ローンとセットでお得に 〇お引渡後のアフターメンテナンスにも迅速に対応 ●豊富な知識で最適な住宅ローンをご紹介 こんなお悩みがあった方も住宅の購入をされています! △パート、アルバイト、勤続1年未満の方 ▲資金計画に不安がある、頭金が無い方 △住宅ローンが通らない、個人情報に問題がある ▲自営業者の方、女性のみで購入される方 △過去に金融事故(滞納など)がある方 ココハウスでは不動産やリフォームのみならず【住宅ローン】にも力を入れております! 暮らしのワンストップサービスでお客様に安心して中古住宅を購入頂ける体制を整えておりますので、暮らしに関する事なら何でもお気軽にお問合せ下さい。 ********************** |
||
| 条件(その他) | 外部オーナー協力金月:500円 | ||
| 取扱会社 |
|
||
| QRコード |
このQRコードを読み取ることで、スマホでも物件情報を確認できます。 |
||
※地図上に表示される物件の位置は付近住所に所在することを表すものであり、実際の物件所在地とは異なる場合がございます。
グラン・ドムール周船寺に関するこだわり条件から探す
福岡市西区以外の市区町村から探す
福岡市西区の町名から探す