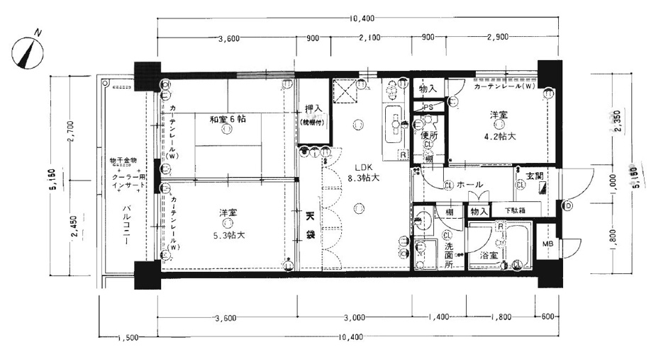
Before(施工前)










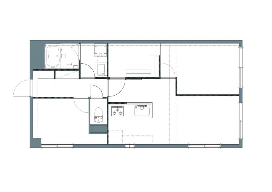
After(施工後)










アンピール第二板付#
福岡市博多区麦野2丁目#
博多区麦野のマンションリフォーム#
フルリノベーション#
収納力のある2SLDK#
TOTOショールーム
|
物件名 |
アンピール第二板付 |
|
所在地 |
福岡市博多区麦野2丁目 |
|
施工金額 |
400万円 |
|
築年数 |
昭和63年 |
|
間取り |
2SLDK |
|
専有面積 |
53㎡ |
現在のお住まいや購入検討している物件の
リフォームのみの相談も可能です。
間取りや見積り希望の方はココハウスまで
お気軽にお問合せ下さい。
お客様専用フリーダイヤル
≪ お問合せフォーム ≫














